Casa indipendente in vendita

Fisciano, Via San Lorenzo - Pizzolano
€ 410.000
11 locali 11 locali
350 Mq 350 Mq
2 bagni 2 bagni

Casa indipendente in vendita

Fisciano, Via San Lorenzo - Pizzolano

Descrizione annuncio

Fisciano Località Pizzolano- Proponiamo in vendita casa indipendente circondata da 800 mq. di giardino privato, perfetta per chi desidera vivere immerso nella tranquillità a pochi passi dal centro.

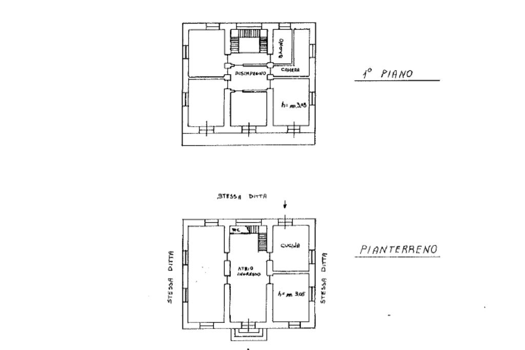
La proprietà si sviluppa su tre livelli;

Piano terra: ingresso, salone doppio, sala pranzo, cucina abitabile con camino, cameretta e bagno.

Piano Primo: cucina abitabile, sala pranzo, tre camere da letto e bagno.

Piano secondo: Mansarda abitabile attualmente allo stato grezzo.

Una soluzione esclusiva, adatta a famiglie o a chi sogna una casa da personalizzare secondo il proprio stile, con la libertà e l'indipendenza che solo una proprietà autonoma può offrire.

Seguiteci anche sui Nostri social 'facebook' 'instagram'.

Offriamo Consulenze e preventivi mutuo gratuiti e senza alcun impegno, aiutandoVi nella scelta del finanziamento più adatto alle Vostre necessità.

Mostra tutto

Nelle vicinanze

Trasporto pubblico Trasporto pubblico
stazione di Mercato San Severino
stazione di Mercato San Severino
2,1 Km
Fisciano
Fisciano
2,6 Km
Trasporto pubblico
1,3 Km
Universita' Fisciano Don Melillo
Universita' Fisciano Don Melillo
1,5 Km
Ricariche auto elettriche Ricariche auto elettriche
Fisciano I Maggio | EnelX
1,7 Km
Mercato San Severino Stazione | EnelX
2,1 Km
Mercato San Severino XX Settembre | EnelX
2,2 Km
EnelX EVA+ Fisciano
2,3 Km
Mercato San Severino Vanvitelli | EnelX
2,4 Km
Scuole Scuole
Edificio F
1,2 Km
UNISA - Università degli studi di Salerno - Campus di Fisciano
1,4 Km
Direzione Didattica Statale
1,8 Km
Istituto Comprensivo Rubino Nicodemi
1,8 Km
Scuole
1,8 Km
Farmacia Farmacia
Farmacia Pugliese Dr. Giuseppe
1,7 Km
Supermercati Supermercati
Conad City
1,9 Km
Shopping Center Plaza
2,1 Km
Supermercati Sisa
2,2 Km
Bricofer
2,5 Km
Negozi Negozi
iPhame
1,7 Km
Negozi
2,1 Km
Guarino Sport
2,4 Km
New Generation
3,0 Km
Bar Bar
Bar
980 m
Gigetto
1,8 Km
Bar Citro
2,4 Km
Bar Scacco Matto
2,6 Km
Bar Tulimieri
3,0 Km
Ristoranti Ristoranti
Maialino Nero
130 m
Ristorante Villa Gloria
340 m
Pizzeria Al Vicolo
1,9 Km
Citto e Basta
2,1 Km
'O Scugnizzo
2,2 Km
Mostra tutto

Caratteristiche

Rif.:
61177298
Piano:
1 di 3 (Piano su più livelli)
Camere da letto:
5
Arredamento:
Assente
Condizionamento:
Assente
Ascensore:
No
Mostra tutto
Prezzo Prezzo
€ 410.000
Rata mutuo Rata mutuo
€ 1.946 / mese
Spese annue Spese annue
€ 0
Proponi il tuo prezzoProponi il tuo prezzo
Immobile valutato con T·Valuta

Classe Energetica

G
G
G
G
G
G
G
G
G
EP globale non rinnovabile:
175.00 kW h/m² anno
EP globale rinnovabile:
175.00 kW h/m² anno
EP invernale del fabbricato:
EP estiva del fabbricato:
Anno di costruzione:
1980
Riscaldamento:
Autonomo
Tipo impianto:
A radiatori
Tipo alimentazione:
Metano

Ti interessa visionare l'immobile?

Fissa un appuntamento  Fissa un appuntamento

Richiedi informazioni

Clicca su Leggi per aprire l'informativa
* Questi campi sono obbligatori

Calcola il tuo mutuo

Semplice e senza impegno
Anticipo

( % )
Mutuo

( % )

pochi semplici passi

inserisci i tuoi dati
Questionario completato
Grazie per aver richiesto un appuntamento senza impegno con un nostro Consulente del Credito e Assicurativo.

Hai inserito correttamente tutti i dati necessari e a breve riceverai una e-mail con un link da convalidare per inviare i tuoi dati.
Affiliato
Studio Fisciano Sas
Via Ten. Nastri, 66 84084 Fisciano (SA)

Il nostro staff


  • Michele Palladino
    Affiliato

  • Barbara Pazienza
    Coordinatrice

  • Vincenzo Pappalardo
    Collaboratore

  • Lorena Peluso
    Coordinatrice

  • Guido Borriello
    Collaboratore
Via Ten. Nastri, 66 84084 Fisciano (SA)
Zona: Lancusi-Fisciano-Università-Calvanico
Mostra su mappa
Orari: Dal lunedì al sabato dalle 09.00 alle 13.30 e dalle 15.30 alle 20.30;Domenica su appuntamento
Affiliato
Studio Fisciano Sas
Via Ten. Nastri, 66 84084 Fisciano (SA)

2026 Tecnocasa Franchising S.p.A. - P. IVA 08365160152 - Via Monte Bianco 60/A 20089 Rozzano (MI). Ogni agenzia ha un proprio titolare ed è autonoma. Privacy policy | Policy utilizzo | Cookie policy