Trilocale in vendita

Fisciano, Piazza Del Popolo - Pizzolano
€ 118.000
3 locali 3 locali
63 Mq 63 Mq
1 bagno 1 bagno

Trilocale in vendita

Fisciano, Piazza Del Popolo - Pizzolano

Descrizione annuncio

A soli 1,5 km. dallo svincolo autostradale di Fisciano, in Località Pizzolano, all'interno di un parco residenziale, proponiamo in vendita appartamento posto al piano rialzato-

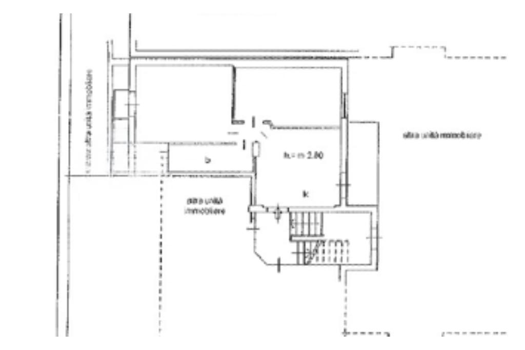
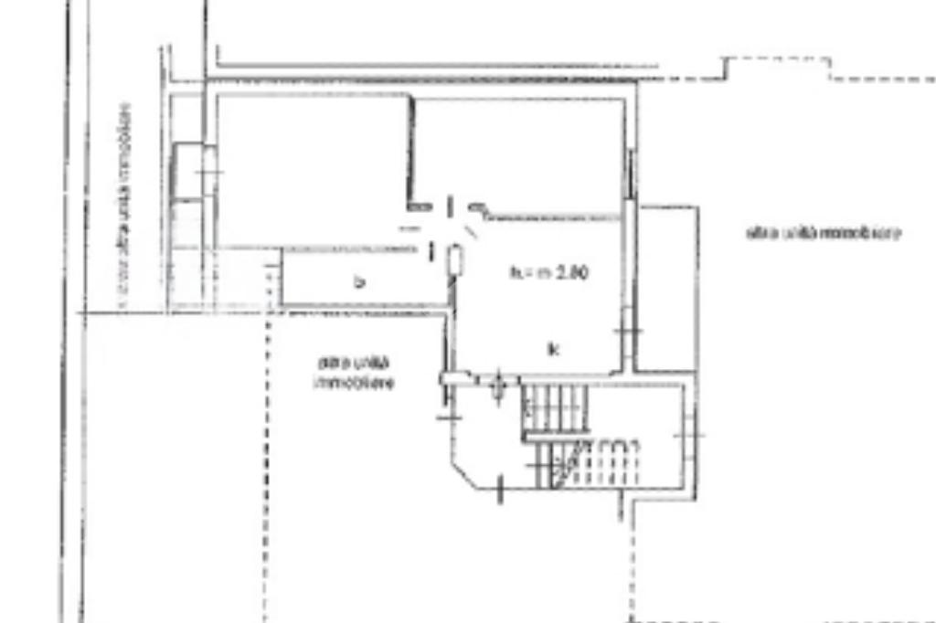
L'immobile è composto da un'ampia zona living open space, due camere da letto e bagno.

Dotato di inferriate di sicurezza e condizionatori, l'appartamento offre comfort e tranquillità.

La doppia esposione con balconi garantisce luminosità e ottima aerazione degli ambienti.

Completano la proprietà un sottotetto, posto auto e box auto.

Soluzione ideale per giovani coppie o per chi desidera un buon investimento.

Seguiteci anche sui Nostri social 'facebook' 'instagram'. 'gruppo Tecnocasa Fisciano'

Offriamo Consulenze e preventivi mutuo gratuiti e senza alcun impegno, aiutandoVi nella scelta del finanziamento più adatto alle Vostre necessità.

Mostra tutto

Nelle vicinanze

Trasporto pubblico Trasporto pubblico
stazione di Mercato San Severino
stazione di Mercato San Severino
1,9 Km
Fisciano
Fisciano
2,6 Km
Trasporto pubblico
1,4 Km
Universita' Fisciano Don Melillo
Universita' Fisciano Don Melillo
1,6 Km
Ricariche auto elettriche Ricariche auto elettriche
Fisciano I Maggio | EnelX
1,8 Km
Mercato San Severino Stazione | EnelX
1,9 Km
Mercato San Severino XX Settembre | EnelX
2,1 Km
Mercato San Severino Vanvitelli | EnelX
2,3 Km
EnelX EVA+ Fisciano
2,3 Km
Scuole Scuole
Edificio F
1,3 Km
UNISA - Università degli studi di Salerno - Campus di Fisciano
1,5 Km
IIS Publio Virgilio Marone
1,8 Km
Direzione Didattica Statale
1,9 Km
Istituto Comprensivo Rubino Nicodemi
2,0 Km
Farmacia Farmacia
Farmacia Pugliese Dr. Giuseppe
1,8 Km
Supermercati Supermercati
Shopping Center Plaza
1,9 Km
Conad City
2,1 Km
Supermercati Sisa
2,1 Km
Bricofer
2,3 Km
Negozi Negozi
iPhame
1,8 Km
Negozi
1,9 Km
Guarino Sport
2,3 Km
New Generation
2,8 Km
Macelleria
2,9 Km
Bar Bar
Bar
1,1 Km
Gigetto
1,9 Km
Bar Citro
2,5 Km
Bar Scacco Matto
2,7 Km
Bar Tulimieri
2,8 Km
Ristoranti Ristoranti
Maialino Nero
110 m
Ristorante Villa Gloria
250 m
Citto e Basta
2,0 Km
Pizzeria Al Vicolo
2,0 Km
Panta Rei Pizzeria
2,2 Km
Mostra tutto

Caratteristiche

Rif.:
61180293
Piano:
1 di 2 (Piano rialzato)
Box:
1
Posti auto:
1
Balconi:
2
Camere da letto:
2
Mostra tutto
Prezzo Prezzo
€ 118.000
Rata mutuo Rata mutuo
€ 560 / mese
Spese annue Spese annue
€ 360
Proponi il tuo prezzoProponi il tuo prezzo
Immobile valutato con T·Valuta

Classe Energetica

G
G
G
G
G
G
G
G
G
EP invernale del fabbricato:
EP estiva del fabbricato:
Anno di costruzione:
2006
Riscaldamento:
Autonomo
Tipo impianto:
A radiatori
Tipo alimentazione:
Metano

Ti interessa visionare l'immobile?

Fissa un appuntamento  Fissa un appuntamento

Richiedi informazioni

Clicca su Leggi per aprire l'informativa
* Questi campi sono obbligatori

Calcola il tuo mutuo

Semplice e senza impegno
Anticipo

( % )
Mutuo

( % )

pochi semplici passi

inserisci i tuoi dati
Questionario completato
Grazie per aver richiesto un appuntamento senza impegno con un nostro Consulente del Credito e Assicurativo.

Hai inserito correttamente tutti i dati necessari e a breve riceverai una e-mail con un link da convalidare per inviare i tuoi dati.
Affiliato
Studio Fisciano Sas
Via Ten. Nastri, 66 84084 Fisciano (SA)

Il nostro staff


  • Michele Palladino
    Affiliato

  • Barbara Pazienza
    Coordinatrice

  • Vincenzo Pappalardo
    Collaboratore

  • Lorena Peluso
    Coordinatrice

  • Guido Borriello
    Collaboratore
Via Ten. Nastri, 66 84084 Fisciano (SA)
Zona: Lancusi-Fisciano-Università-Calvanico
Mostra su mappa
Orari: Dal lunedì al sabato dalle 09.00 alle 13.30 e dalle 15.30 alle 20.30;Domenica su appuntamento
Affiliato
Studio Fisciano Sas
Via Ten. Nastri, 66 84084 Fisciano (SA)

2026 Tecnocasa Franchising S.p.A. - P. IVA 08365160152 - Via Monte Bianco 60/A 20089 Rozzano (MI). Ogni agenzia ha un proprio titolare ed è autonoma. Privacy policy | Policy utilizzo | Cookie policy